Nová norma ČSN EN 81-70+A1 a změny ve výtazích LC
Vážení zákazníci,
Jak jistě víte, od letošního ledna je v platnosti nová norma ČSN EN 81-70+A1, což je norma pro výtahy přístupné osobám s omezenou schopností pohybu a orientace.
Zde Vám přinášíme krátký výčet první části změn a návazných opatření, která nyní v našich výtazích podléhajících této normě, naleznete.
- Kontrast jasu mezi sousedními povrchy – tlačítka
Na lesklých a přímo odrážejících površích mohou nepříznivé odrazy snížit kontrast jasu. Světlé barevné tóny povrchů stropů a stěn a rozptýlené odrážející materiály zabraňují rušivým odrazům na tlačítkových panelech.
Do přivolávačů ve stanicích a do ovladačové kombinace v kabině u výtahů s normou EN 81-70 přidáváme černé kontrastní podložky pod tlačítka.
-
Ve stanicích musí být instalovány šipky zobrazující směr jízdy
Šipky musí být barevně odlišeny (červená dolů, zelená nahoru).
Rozsvícení šipek musí nově doprovázet zvukový signál ve chvíli, kdy se dveře začnou otevírat: jedno zaznění pro jízdu nahoru, dvě zaznění pro jízdu dolů.

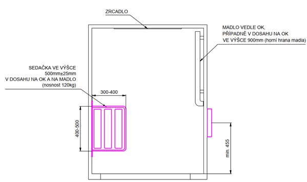
- Zrcadlo musí být instalováno tak, aby imobilním osobám umožňovalo sledovat překážky za nimi, když couvají ven z kabiny
V případě kabiny s jedním vstupem, bude zrcadlo instalováno na zadní stěnu. V případě průchozí kabiny bude zrcadlo instalováno na boční stěnu doprostřed.
- Osvětlení v intenzitě 100 LX ve všech místech v kabině
Osvětlení musí nově poskytovat minimální intenzitu osvětlení 100 LX ve všech místech na kabině (dosud byla tato intenzita vyžadována pouze v 1m od podlahy).
- Madlo musí mít nově konec zahnutý ke stěně
Do naší nabídky v nejbližší době zařadíme nový typ madla se zahnutými konci. Madlo si můžete vybrat do jakéhokoliv výtahu, tedy i do výtahu bez přístupnosti osobám s omezenou schopností pohybu a orientace. Až bude madlo možné objednat, budeme Vás informovat.
Pro více informací kontaktujte naše obchodní oddělení.
Zde jsou ještě pro zajímavost minimální rozměry kabiny, které musí výtahy dané nosnosti mít, aby splňovaly normu EN 81-70.







